banner-key-2026
banner-l+b-2026
banner-sito-ita-(1)
banner-fireproof-1
banner-sito-(2)
banner-sito-ita-(1)
1920x150-ramklima-inverter-it
banner-sito-combitech-f5-ul-1920x150-1
banner-sito-echarger-1920x150

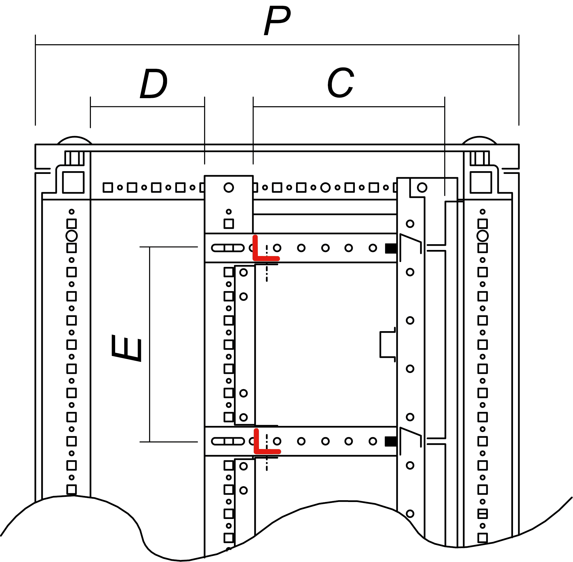
Pannello Di Tamponamento L. 600

CODICE RZFCP60
CLASSE ETIM EC002535

Pannello di tamponamento, realizzato in lamiera d’acciaio sp. 15/10 zincata Sendzimir. Interposto tra due pannelli di cablaggio serve a garantire un grado di protezione IP 20. Confezione da 5 pezzi completa di viteria per il fissaggio.

DOWNLOAD CAD
Download
Download PDF
Caratteristiche tecniche
Caricamento in corso
Disegni Tecnici
Trova per il tuo business la miglior soluzione DKC
Contattaci per scoprire i nostri prodotti